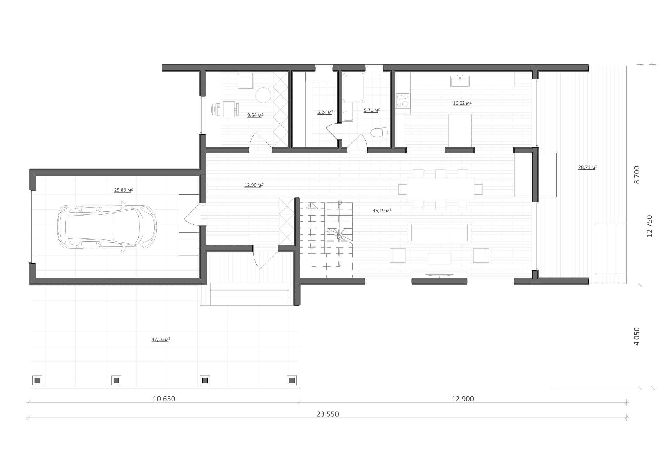
1 этаж

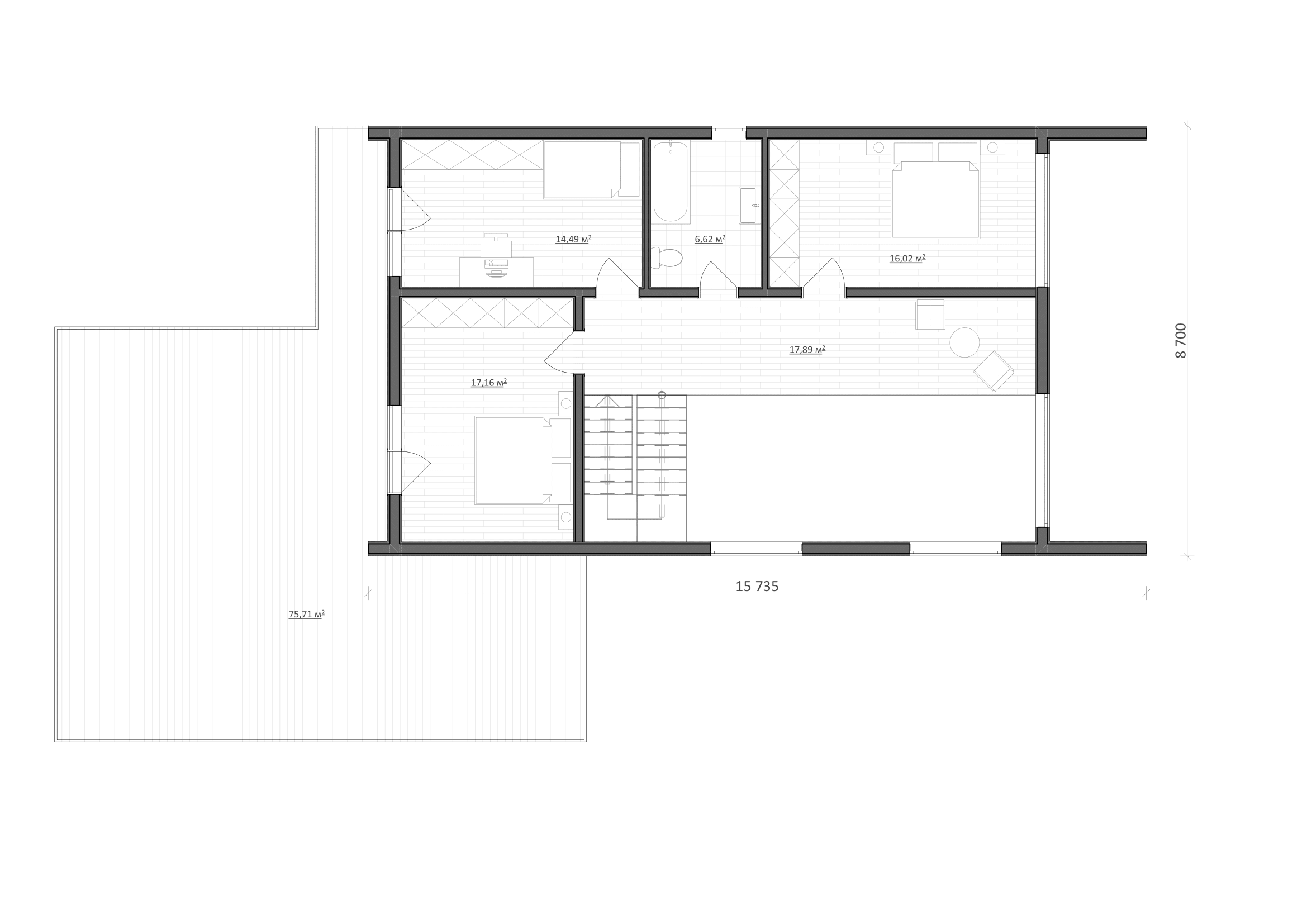
2 этаж

Строительство дома осуществляется по каркасной технологии.
Высота потолка 1-го этажа — 3,0м. Высота потолка 2-го этажа - 1.8м в низкой точке, 4.8 м в коньке.
Площадь помещений - 192,5м2
Оставить заявкуФундамент - Ж/б сваи. Обвязка свай из бруса 150*200мм.
Каркас - Наружные стены и стропильная система из доски 45*195 мм.
Капитальные внутренние стены из доски 45*145 мм. Перегородки из доски 45*95 мм.
Перекрытие первого и второго этажа - Из сухой строганной доски 45*195мм.
Пол - ОСБ плита 18мм, по деревянной обрешетки из доски 25*100.
Утепление - Для утепления дома применяется минеральный утеплитель URSA TERRA (или аналог).
Утепление перекрытия, наружных стен и кровли — 200 мм.
Шумоизоляция внутренних перегородок и межэтажного перекрытия — 100 мм.
Пароизоляция с проклейкой стыков скотчем ДельтаМультибенд.
Крыша - Покрытие гибкой черепицей. Потолок - обрешетка из доски 25*100мм.
Внутренняя отделка - Стены обшиты ГКЛ 12 мм, без шпаклевки, без оконных и дверных откосов.
Отделка фасада - Декоративная штукатурка.
Подшив кровли - металлический сайдинг.
Водосточная система - Металлическая.
Окна - ПВХ, профиль, 60 мм, 5-тикамерный; стеклопакет - двухкамерный, 3 стекла.
Входная дверь - Металлическая утепленная. Выходы на террасу - ПВХ профиль (по типу окна)
Электрика - Разводка внутренней системы электроснабжения. Распаечные коробки вверху, вывод концов для розеток и освещения, без установки подрозетников, розеток, выключателей и светильников.
Сантехника –
Канализация - трубы ПВХ 110, 50 мм разводка внутри дома и выпуск из дома;
Водопровод - гильза для трубы 32 мм, разводка труб ПП внутри дома, без установки сантехнических приборов.
Отопление - электрический котел, без автоматики, комплект для подключения котла, радиаторы, разводка труб ПП.
Камин в стоимость не входит.